施設案内
本郷地区センターは地域活動の拠点として、文化・芸術・生涯学習・スポーツなどさまざまな活動を支援し、活力ある地域づくりに貢献します。

| 所在地 | 〒247-0007 横浜市栄区小菅ケ谷1-5-4(アクセスマップ) |
| 電話 | 045-392-5157 |
| FAX | 045-894-9903 |
| 開館時間 | 9時〜21時(月曜日〜土曜日)、9時〜17時(日曜日・祝日) |
| 休館日 | 毎月第3月曜日(施設点検日)、月曜日が祝日・振替休日にあたるときはその翌日 年末・年始(12月29日〜1月3日) |
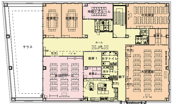
フロアー案内
2階

3階

各施設案内
| 予約が必要な部屋 |
2階

工芸室

陶芸室

和室

グループ室(ケアプラザと共有)
3階

会議室1

会議室2(区民活動センターと共有です)

中会議室

大会議室

料理室(ケアプラザと共有)
| 予約なしでどなたでもご利用いただける部屋・スペース |
図書コーナー

娯楽コーナー

プレイルーム

授乳室

※プレイルーム・授乳室をご利用になる際は受付にお声かけをお願いします
FREE SPOTのご利用について

SAKAESTAでは、利用者の利便性向上のため、インターネットを利用した情報の調査などに利用できる公衆無線LANサービスを提供しています。2階に無線アクセスポイントを設置し、娯楽コーナー、図書コーナー、ミーティングスペース、情報・相談コーナー、情報ラウンジでFREESPOT協議会が運営する「フリースポット(FREESPOT)」へ接続が行える環境を整えました。フリースポットに接続するには、メールアドレスを登録し、登録したメールアドレスに送信された「パスワード」による認証が必要です。操作方法等については、「フリースポットの接続方法」のとおりです。なお、フリースポットの接続方法やメールアドレスの登録、パスワードの受信等の問い合わせについては、直接、フリースポットコールセンターへお問い合わせください。申し訳ありませんが、SAKAESTAでは対応できかねますので、ご了承ください。
| 利用可能な時間 | 月曜から土曜 9:00〜21:00 日・祝日 9:00〜17:00 |
| フリースポットコールセンター | 050-5538-5496 |
| 受付時間 | 平日9:00〜12:00、13:00〜18:00 |
| 休館日 | 第3月曜日・年末年始(12月29日〜1月3日) |
※詳しい規約はこちら
※工事、メンテナンス等の理由でご利用できない場合がございます
※工事、メンテナンス等の理由でご利用できない場合がございます


